PROJECT TYPE:
URBAN INFILL, MIXED-USE

PROGRAM:
PARKING FACILITY, ARCHITECTURE CENTER

LOCATION:
MIDTOWN HOUSTON, TX

INSTRUCTOR:
PAUL HOMEYER

COMPLETION:
FALL 2011

 

 
conspiring-with-reality_main01.png

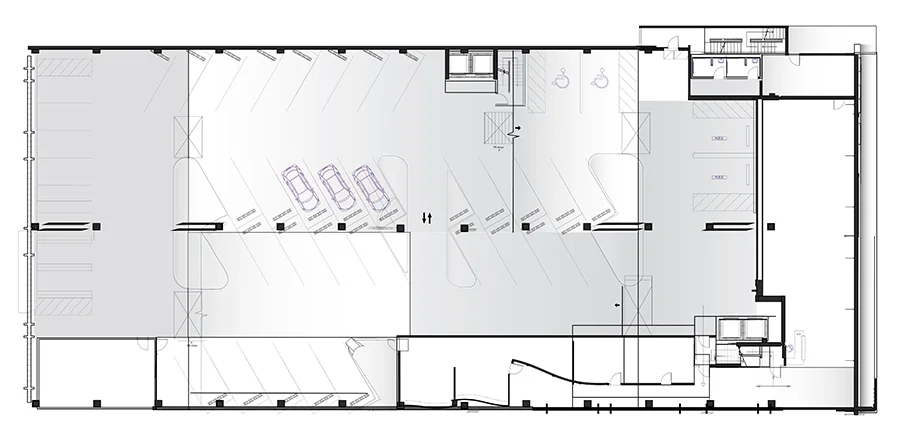
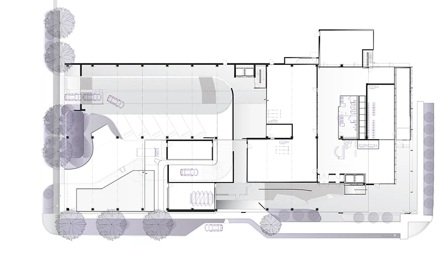
ONE OF THE CHALLENGES FOR A MIXED-USE MIDTOWN DEVELOPMENT WAS TO ESTABLISH AN ACTIVE STREET SETTING WITHIN A RATHER COMPACT SITE. THE PROGRAM REQUIRED THE ADDITION OF PARKING COMPLEX TO FACILITATE PROGRAMS HELD AT THE ADJACENT TRINITY CHURCH. WITH DEVELOPMENT SITUATED ALONG TWO BUSY THOROUGHFARES AND HOUSTON’S TRANSIT LINE, THE PROPOSAL ALSO HAD TO ENSURE THAT TRAFFIC FLOW WAS ADEQUATELY MANAGED AND CONCORDANT WITH EXISTING CITY DEVELOPMENTS.

GALLERY_5.jpeg
GALLERY_4.jpeg
GALLERY_5.jpg
archaerialfinal.JPG
arch-persp01.jpg
1F.jpg
2F.jpg
3F-ARCH.jpg